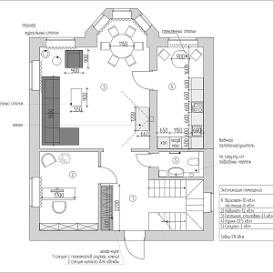
Интерьер с перегородкой, нишей, зонированием, сауной, без дверей, проходной, зонированием шторами, гостиной-прихожей, гостиной-столовой, проемом, open space и переговорной в неоклассике, проект «Частный дом в Энгельсе. 1,2 этаж, цоколь» №20
Фото из проекта:
