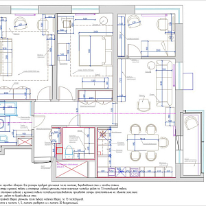
Интерьер гостиной с рейками с подсветкой, подсветкой настенной, подсветкой светодиодной и с подсветкой в современном стиле, проект «3-х комнатная квартира для семьи с двумя детьми» №1
Фото из проекта:
