Шеремета Василина
Дизайнер интерьера
Город: Сочи
Проектов: 19
Фотографий: 417
Заказать проект
Портфолио
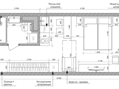
Квартира в классическом стиле в нежных тонах
Квартира в бирюзовых тонах в Сочи
Квартира с яркими акцентами в Сочи
Квартира с яркими акцентами в скандинавском стиле
Квартира в индустриальном стиле
3-х комнатная квартира 50 м2 в стиле неоклассики в Сочи
Частный банный комплекс в Красной Поляне
1-й этаж загородного дома для молодой семьи из 4-х человек в стиле лофт
2-й этаж загородного дома для молодой семьи из 4-х человек в стиле лофт
3-х комнатная квартира для молодой семьи с ребенком в современном стиле в ЖК "Светлоград"
Квартира 36 м2 под сдачу в аренду в Красной Поляне
Квартира 68 м2 для семьи из 3-х человек
Квартира 67 м2 для молодой семьи с детьми
1-й этаж загородного дом в Красной Поляне
Квартира 35 м2 в современном стиле под сдачу в аренду
Квартира 78 м2 в классическом стиле для супружеской пары в Сочи
Коллажи апартаментов под сдачу в аренду в Санкт-Петербурге
Квартира 40 м2 для супружеской пары в нейтральных цветах с яркими зелеными акцентами
Дом 167 м2 в Красной Поляне
Оставьте заявку по вашему проекту
и мы свяжемся с вами в ближайшее время
